Quadrilocale in vendita

Rivoli, Via L. Gatti
€ 177.000
4 locali 4 locali
90 Mq 90 Mq
1 bagno 1 bagno

Quadrilocale in vendita

Rivoli, Via L. Gatti

Descrizione annuncio

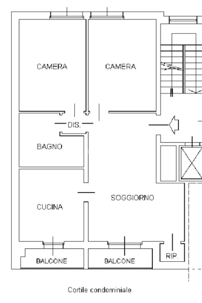
Appartamento al piano alto completamente ristrutturato con ascensore

Proponiamo in vendita un elegante appartamento di 90 mq, situato al quinto piano di un edificio servito da ascensore, a pochi passi da Piazza Aldo Moro, nota per il vivace mercato rionale. La posizione privilegiata offre un accesso immediato a tutti i principali servizi: scuole, fermate dell'autobus, supermercati, panetterie, ristoranti, farmacie, negozi, aree verdi e parcheggi liberi.

L'appartamento, completamente ristrutturato nel 2020, si distingue per la sua disposizione funzionale e la doppia esposizione, che garantisce ambienti luminosi e accoglienti. Gli interni sono stati progettati per offrire il massimo comfort e comprendono:
- Due camere da letto spaziose e luminose;
- Un soggiorno ampio e una cucina abitabile, ideali per momenti di relax e convivialità;
- Un bagno moderno con finiture di pregio, completo di zona lavatrice e asciugatrice;
- Ripostiglio pratico e comodo per lo stoccaggio.

A valorizzare ulteriormente la proprietà vi sono due balconi: uno dei quali dotato di un comodo lavabo esterno, perfetto per le attività quotidiane. Completano l'immobile una cantina piastrellata e un box auto di pertinenza, che garantiscono praticità e spazio aggiuntivo.

L'appartamento è dotato di portoncino blindato per una maggiore sicurezza. L'edificio, risalente al 1983, è stato recentemente aggiornato con l'installazione di un moderno videocitofono nel 2025, assicurando comfort e tranquillità agli abitanti.

Questa soluzione abitativa rappresenta un'opportunità imperdibile per chi desidera vivere in una zona strategica, ben servita e al contempo tranquilla. Gli spazi luminosi, la cura nei dettagli e le numerose comodità rendono questa casa ideale per famiglie o coppie alla ricerca di un ambiente accogliente e funzionale.

Contattaci oggi stesso per ricevere ulteriori informazioni o per fissare una visita!

Mostra tutto

Nelle vicinanze

Trasporto pubblico Trasporto pubblico
Nuova Tetti N. 41
Nuova Tetti N. 41
80 m
Nuova Tetti
Nuova Tetti
120 m
Ricariche auto elettriche Ricariche auto elettriche
Mercatò Rivoli | EnelX fast
1,4 Km
Mercatò Rivoli
1,4 Km
RIVOLI Via Pavia | ENELX FAST
2,3 Km
Tris Car Di Mina Giuseppe | EnelX
2,6 Km
EnelX EVA+ Centro Commerciale Auchan Rivoli
2,8 Km
Scuole Scuole
Scuola Primaria Gozzano
270 m
Scuola Piero Gobetti - Rivoli
320 m
I.I.S. "Giulio Natta"
600 m
Liceo Scientifico paritario Lagrange
650 m
Collegio Scuola San Giuseppe
900 m
Farmacia Farmacia
Farmacia dei Bastioni
350 m
Viscovo
460 m
Farmacia
480 m
Comunale
570 m
Centrale
810 m
Ospedali Ospedali
Ospedale di Rivoli - Emergency
460 m
Ospedale di Rivoli
510 m
Supermercati Supermercati
Crai
540 m
E'
880 m
Coop
1,2 Km
CRAI
1,3 Km
Mercatò
1,4 Km
Negozi Negozi
Bread House Lab
420 m
Negozi
460 m
Mattiazzo
550 m
Re Bianco
600 m
I frutti del grano
620 m
Bar Bar
Ary Caffè
810 m
Il Sole
940 m
La Corona
950 m
Macchiato D'inchiostro
1,1 Km
Il frullo
1,2 Km
Ristoranti Ristoranti
Il Bisogno
640 m
.Italy
650 m
Kaizen
700 m
L'Arrocco
930 m
Opificio
930 m
Mostra tutto

Caratteristiche

Rif.:
61130975
Piano:
5 di 8 con ascensore (Piano alto)
Box:
1
Balconi:
2
Camere da letto:
2
Arredamento:
Assente
Mostra tutto
Prezzo Prezzo
€ 177.000
Rata mutuo Rata mutuo
€ 834 / mese
Spese annue Spese annue
€ 1.395
Proponi il tuo prezzoProponi il tuo prezzo
Immobile valutato con T·Valuta

Classe Energetica

F
F
F
F
F
F
F
F
F
EP globale non rinnovabile:
1990.00 kW h/m² anno
EP globale rinnovabile:
0.82 kW h/m² anno
EP invernale del fabbricato:
EP estiva del fabbricato:
Anno di costruzione:
1983
Riscaldamento:
Centralizzato
Tipo impianto:
A radiatori
Tipo alimentazione:
Metano

Ti interessa visionare l'immobile?

Fissa un appuntamento  Fissa un appuntamento

Richiedi informazioni

Clicca su Leggi per aprire l'informativa
* Questi campi sono obbligatori

Calcola il tuo mutuo

Semplice e senza impegno
Anticipo

( % )
Mutuo

( % )

pochi semplici passi

inserisci i tuoi dati
Questionario completato
Grazie per aver richiesto un appuntamento senza impegno con un nostro Consulente del Credito e Assicurativo.

Hai inserito correttamente tutti i dati necessari e a breve riceverai una e-mail con un link da convalidare per inviare i tuoi dati.
Affiliato
Immobiliare Cavalieri Sas
Via Cavalieri di Vittorio Veneto, 9 10098 Rivoli (TO)

Il nostro staff


  • Alessandro De Felice
    Affiliato

  • Miriana Catalano
    Coordinatrice

  • Alessandro Frassi
    Affiliato
Via Cavalieri di Vittorio Veneto, 9 10098 Rivoli (TO)
Zona: Rivoli - Centro e Collina
Mostra su mappa
Orari: lunedì-venerdì 09.00-12.30 / 15.00-19.30 sabato 09.00-12.30 / 15.00-18.00
Affiliato
Immobiliare Cavalieri Sas
Via Cavalieri di Vittorio Veneto, 9 10098 Rivoli (TO)

2026 Tecnocasa Franchising S.p.A. - P. IVA 08365160152 - Via Monte Bianco 60/A 20089 Rozzano (MI). Ogni agenzia ha un proprio titolare ed è autonoma. Privacy policy | Policy utilizzo | Cookie policy