Quadrilocale in affitto

Rivoli, Via I° Maggio
€ 650 / mese
4 locali 4 locali
90 Mq 90 Mq
1 bagno 1 bagno

Quadrilocale in affitto

Rivoli, Via I° Maggio

Descrizione annuncio

APPARTAMENTO NON ARREDATO IN UN CONTESTO SIGNORILE DEL 2009 LIBERO DAL 01/01/2026

POSIZIONE CENTRALISSIMA - RISCALDAMENTO AUTONOMO


Nel cuore di Rivoli, a pochi passi da Piazza Martiri e Piazza Aldo Moro, proponiamo in vendita un elegante appartamento situato in uno stabile di recente costruzione. La posizione privilegiata garantisce la massima comodità, con facile accesso a tutti i principali servizi: scuole, trasporti pubblici, supermercati, negozi e ristoranti.

Lo stabile è dotato di ascensore e privo di barriere architettoniche, garantendo accessibilità per tutti. Il riscaldamento autonomo, con caldaia recentemente sostituita, assicura efficienza energetica e comfort abitativo. Le finiture di pregio e la cura nei dettagli conferiscono all'appartamento un'atmosfera raffinata ed accogliente.

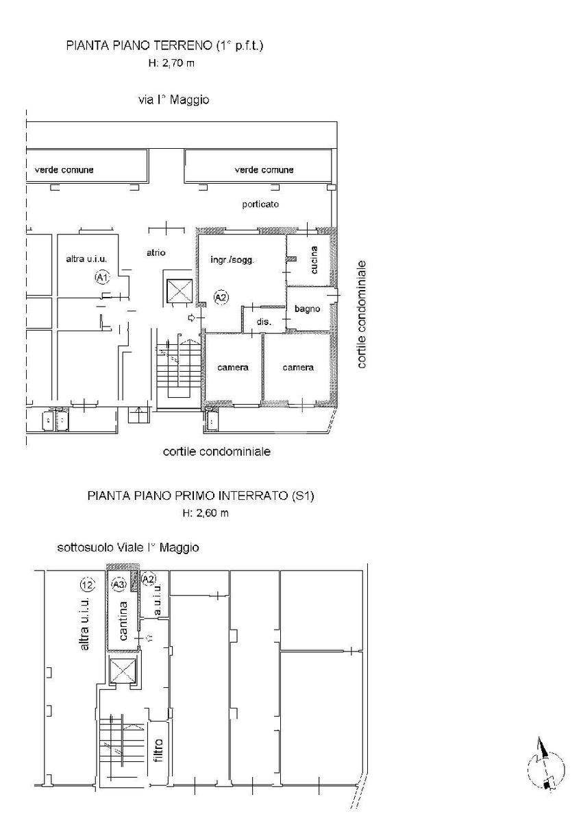
L'immobile, caratterizzato da una superficie di 90 mq, offre ambienti versatili e ben distribuiti, rendendolo ideale sia come residenza privata che come studio professionale. La proprietà è composta da quattro locali: due camere da letto luminose, un bagno finestrato, un cucinotto funzionale, un ampio soggiorno e un balcone che aggiunge un tocco di vivibilità agli spazi.

Questa proprietà rappresenta un'opportunità unica per chi desidera vivere in un contesto elegante e funzionale nel centro di Rivoli. Non perdere l’occasione di locare un appartamento che coniuga qualità, comfort e posizione strategica.

Per maggiori informazioni o per fissare una visita, contattaci oggi stesso!

Questo annuncio non costituisce vincolo contrattuale.

Mostra tutto

Nelle vicinanze

Trasporto pubblico Trasporto pubblico
Alpignano
Alpignano
2,4 Km
Vernante N. 11
Vernante N. 11
80 m
Francia Capolinea
Francia Capolinea
180 m
Ricariche auto elettriche Ricariche auto elettriche
Mercatò Rivoli
1,4 Km
Mercatò Rivoli | EnelX fast
1,5 Km
RIVOLI Via Pavia | ENELX FAST
2,2 Km
EnelX EVA+ Centro Commerciale Auchan Rivoli
2,3 Km
Tris Car Di Mina Giuseppe | EnelX
2,8 Km
Scuole Scuole
Collegio Scuola San Giuseppe
240 m
Liceo Scientifico paritario Lagrange
320 m
Scuola Piero Gobetti - Rivoli
360 m
Scuola Primaria "Walt Disney"
400 m
Scuole
400 m
Farmacia Farmacia
Farmacia
180 m
Farmacia dei Bastioni
310 m
Centrale
320 m
Comunale
480 m
Farmacia Reale
560 m
Ospedali Ospedali
Ospedale di Rivoli - Emergency
1,1 Km
Ospedale di Rivoli
1,1 Km
Ospedali
2,9 Km
Supermercati Supermercati
Crai
110 m
E'
310 m
Coop
520 m
Naturasi
1,2 Km
CRAI
1,2 Km
Negozi Negozi
I frutti del grano
40 m
Mattiazzo
270 m
Re Bianco
300 m
Ël forn ëd Rivulè
330 m
Intimo e Altro
340 m
Bar Bar
Ary Caffè
440 m
Macchiato D'inchiostro
700 m
Il Sole
730 m
La Corona
760 m
Pinguino
800 m
Ristoranti Ristoranti
Il Bisogno
140 m
.Italy
270 m
Kaizen
350 m
La Grande Pizza
390 m
Opificio
430 m
Mostra tutto

Caratteristiche

Rif.:
61145375
Piano:
Terra di 5 con ascensore
Totale piani:
5
Balconi:
1
Camere da letto:
2
Arredamento:
Assente
Mostra tutto
Prezzo Prezzo
€ 650 / mese
Spese annue Spese annue
€ 960

Classe Energetica

C
C
C
C
C
C
C
C
C
EP globale non rinnovabile:
119.22 kW h/m² anno
EP invernale del fabbricato:
EP estiva del fabbricato:
Anno di costruzione:
2009
Riscaldamento:
Autonomo
Tipo impianto:
A radiatori
Tipo alimentazione:
Metano

Ti interessa visionare l'immobile?

Fissa un appuntamento  Fissa un appuntamento

Richiedi informazioni

* Questi campi sono obbligatori
Affiliato
Immobiliare Cavalieri Sas
Via Cavalieri di Vittorio Veneto, 9 10098 Rivoli (TO)

Il nostro staff


  • Alessandro De Felice
    Affiliato

  • Miriana Catalano
    Coordinatrice

  • Alessandro Frassi
    Affiliato
Via Cavalieri di Vittorio Veneto, 9 10098 Rivoli (TO)
Zona: Rivoli - Centro e Collina
Mostra su mappa
Orari: lunedì-venerdì 09.00-12.30 / 15.00-19.30 sabato 09.00-12.30 / 15.00-18.00
Affiliato
Immobiliare Cavalieri Sas
Via Cavalieri di Vittorio Veneto, 9 10098 Rivoli (TO)

2025 Tecnocasa Franchising S.p.A. - P. IVA 08365160152 - Via Monte Bianco 60/A 20089 Rozzano (MI). Ogni agenzia ha un proprio titolare ed è autonoma. Privacy policy | Policy utilizzo | Cookie policy